"Načítám..."
Dispozice Komerce
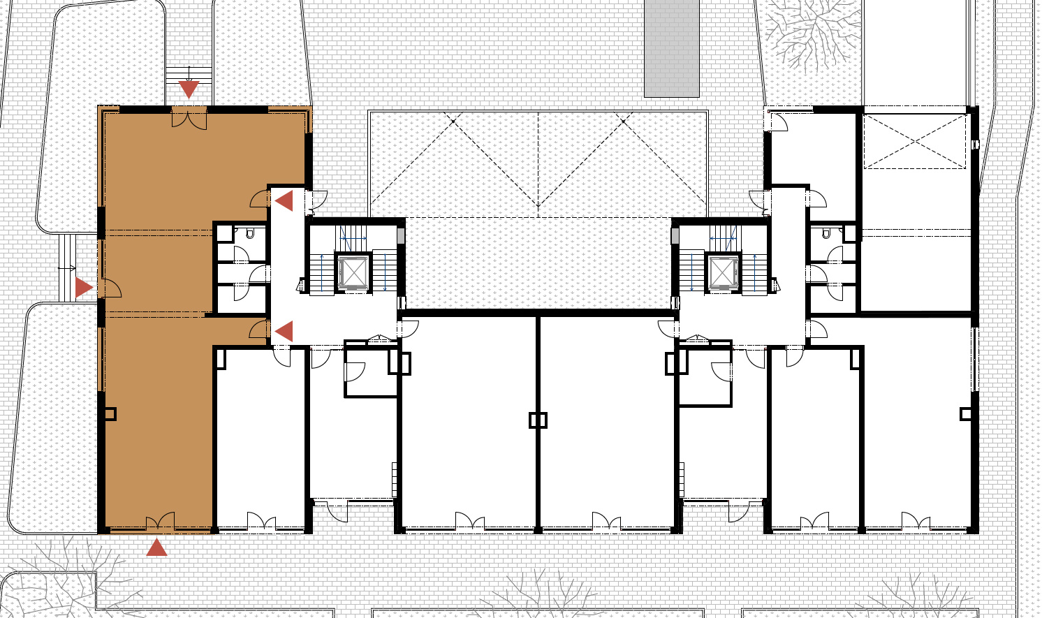
Podlaží 1.NP
Užitná plocha 159,43 m2
Cena 13 503 720 Kč
Investorská příležitost - odhadovaný výnos 5,07 % p.a.
Předpokládaná cena nájmu je 380-525 Kč/m2.
Prostory disponují velkou prosklenou výlohou a jsou výborně vizibilní.
Komerce C1.06

DEVELOPER

Pierre Grafen a.s.

ARCHITEKTI

Arch. ateliér ORTOGONAL s.r.o.

PROJEKT MANAGEMENT

IKONIX s.r.o.

GENERÁLNÍ DODAVATEL

Arch Construct s.r.o.

VÝHRADNÍ PRODEJCE

LUXENT - EXCLUSIVE PROPERTIES

LUXENT - EXCLUSIVE PROPERTIES

www.luxent.cz
Pařížská 205/23
Praha 1 – Josefov
110 00

MAKLÉŘ PROJEKTU

Ing. Zdeněk Jemelík
+420 720 310 300
zdenek.jemelik@luxent.cz